Сдается коммерческая, 760 кв.м., 1/1 эт

Обзор
Арендная плата ()
275 000
Цена кв.м. в год
0
Тип коммерческойСкладское помещение
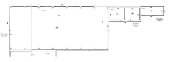
Площадь, кв.м.760
Этаж1
Этажность1
Адрес
Населенный пунктКемерово
Район городаЗаводский
Улицапроспект Кузнецкий

CRE @ BUSINESS - производственная и складская недвижимость в аренду и на продажу.

Все предложения от собственников, комиссии нет! Готовы предложить помещение под Ваш запрос, звоните!

 

АРЕНДА! Производственно складское помещение площадью 760 кв.м.

- г. Кемерово, Заводской район.

- Производственное здание, расположенное в пром зоне.

- Собственная огороженная территория, парковка и место для маневра большегрузного транспорта.

-- Свободная планировка, шаг колонн 6х18 м.. Высота 7 м.

- электрическая мощность 50 кВт.

- отопление - газовая котельная, .

- Офисные и бытовые помещения (комната персонала, санузел, душевая...)

- полы бетон, 

- двое ворот высотой 3,8 м

 

Арендная плата включает НДС 22%, коммунальные и эксплуатационные расходы.

 

CRE @ BUSINESS - коммерческая недвижимость и готовый бизнес.

Работаем для Вас с 2017 года!

Расположение

Важно! На карте не всегда указано точное местоположение. Более точную информацию можно узнать у менеджера, разместившего объект