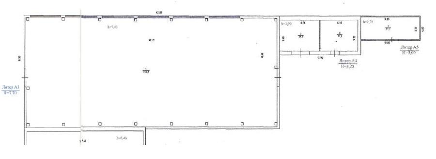
Сдается коммерческая, 760 кв.м., 1/1 эт
| Арендная плата () | 275 000 |
|---|---|
| Цена кв.м. в год | 0 |
| Тип коммерческой | Складское помещение |
| Площадь, кв.м. | 760 |
| Этаж | 1 |
| Этажность | 1 |
| Населенный пункт | Кемерово |
|---|---|
| Район города | Заводский |
| Улица | проспект Кузнецкий |
CRE @ BUSINESS - производственная и складская недвижимость в аренду и на продажу.
Все предложения от собственников, комиссии нет! Готовы предложить помещение под Ваш запрос, звоните!
АРЕНДА! Производственно складское помещение площадью 760 кв.м.
- г. Кемерово, Заводской район.
- Производственное здание, расположенное в пром зоне.
- Собственная огороженная территория, парковка и место для маневра большегрузного транспорта.
-- Свободная планировка, шаг колонн 6х18 м.. Высота 7 м.
- электрическая мощность 50 кВт.
- отопление - газовая котельная, .
- Офисные и бытовые помещения (комната персонала, санузел, душевая...)
- полы бетон,
- двое ворот высотой 3,8 м
Арендная плата включает НДС 22%, коммунальные и эксплуатационные расходы.
CRE @ BUSINESS - коммерческая недвижимость и готовый бизнес.
Работаем для Вас с 2017 года!















