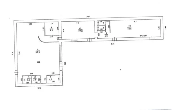
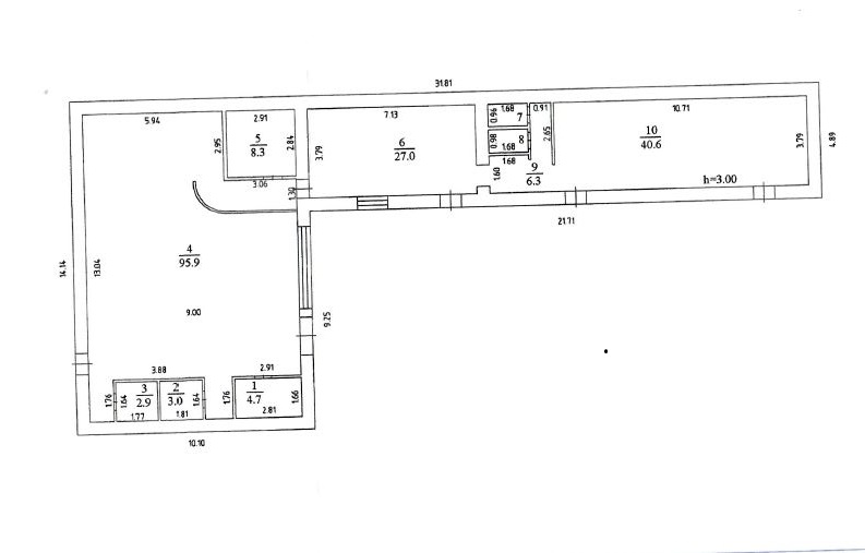
Продается коммерческая, 410 кв.м., 1/1 эт
| Стоимость | 12 000 000 |
|---|---|
| Площадь участка, сот | 15 |
| Тип коммерческой | Помещение свободного назначения |
| Площадь, кв.м. | 410 |
| Этаж | 1 |
| Этажность | 1 |
| Населенный пункт | Кемерово |
|---|---|
| Район города | Рудничный |
| Улица | улица Елыкаевская |
CRE & BUSINESS - объекты недвижимости в аренду и на продажу.
Все предложения от собственников, комиссии нет! Предложим недвижимость под Ваш запрос, звоните!
ПРОДАЖА! земельный участок с двумя зданиями
г. Кемерово,Рудничный район.
ЗЕМЕЛЬНЫЙ УЧАСТОК 15 соток в собственности
- первая линия
- огорожен, благоустроен
- газ недалеко от границы участка, возможна газификация участка.
- выделенная эл мощность 30 кВт.
- Водоснабжение скважина с системой хим очистки (подходит по требованиям САНПИН под пищевое производство)
- канализация септик
На участке два одноэтажных здания площадью 205 и 208 кв.м. Используются как торговые площади и общепит, возможно изменение назначения.
CRE & BUSINESS - коммерческая недвижимость и готовый бизнес.
Работаем для Вас с 2017 года!























