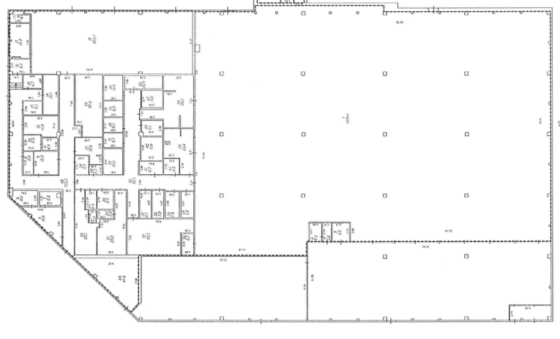
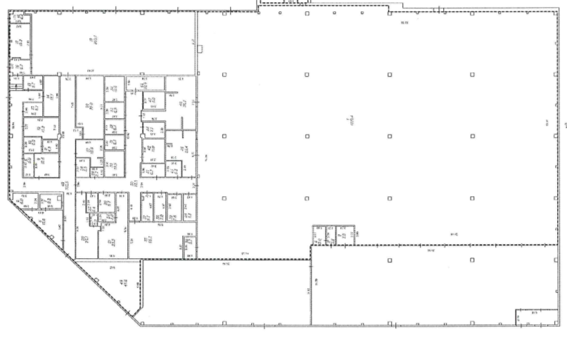
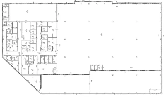
Сдается коммерческая, 3500 кв.м., 1/1 эт
| Арендная плата () | 2 730 000 |
|---|---|
| Цена кв.м. в год | 0 |
| Тип коммерческой | Торговое помещение |
| Площадь, кв.м. | 3500 |
| Этаж | 1 |
| Этажность | 1 |
| Населенный пункт | Кемерово |
|---|---|
| Район города | Рудничный |
| Улица | улица Терешковой |
CRE @ BUSINESS - торговые и складские помещения в аренду и на продажу.
Все предложения от собственников, комиссии нет! Готовы предложить помещение под Ваш запрос, звоните!
АРЕНДА! Помещение 3500 кв.м. (назначение: торговое, распределительный центр,)
г. Кемерово, Рудничный район.
- Отдельно стоящее здание, на земельном участке - 6600 кв.м. первая линия
- Оборудованная зона разгрузки, для большегрузного и среднетонажного транспорта
- Свободная планировка;
- Высота помещения 12 м
- эл. мощность 400 кВт
- центральные сети: водоснабжение и водоотведение,
- собственная газовая котельная,
- Парковка для посетителей перед зданием, 126+20 машино-мест.
- Место для стоянки и маневра большегрузного транспорта на огороженной территории.
CRE @ BUSINESS - коммерческая недвижимость и готовый бизнес.
Работаем для Вас с 2017 года!















